Trilocale in vendita

Rozzano, Via Monte Rosa - Valleambrosia
€ 227.000
3 locali 3 locali
80 Mq 80 Mq
2 bagni 2 bagni

Trilocale in vendita

Rozzano, Via Monte Rosa - Valleambrosia

Descrizione annuncio

VIA MONTE ROSA - ROZZANO (MI) : Nel cuore di Valleambrosia (ROZZANO) , quindi a pochi passi dalla fermata della metropolitana M2 ‘Assago Milanofiori Forum’, oltre che dalle fermate dei vari mezzi di superficie (bus 201 e Tram 15), che in meno di 30 minuti collegano anche al centro della città di Milano, proponiamo in stabile del 2007, con cortile condominiale ove è possibile parcheggiare le bici per i condomini, un TRILOCALE RISTRUTTURATO CON DOPPIA ESPOSIZIONE, posto al primo piano in stabile dotato di servizio di Pulizia settimanale ed ascensore.

La zona risulta tranquilla e ben servita, fornita di tutti i servizi di prima necessità come supermercati, farmacie, scuole, poste, bar e ristoranti. Sono molti i comuni che si trovano appena fuori Milano e che sono ben collegati con la city, in cui tra l'altro si può godere di un'ottima qualità della vita. Uno di questi è proprio Rozzano, un comune così vicino alla città, da poterlo paragonare ad un quartiere della stessa Milano.

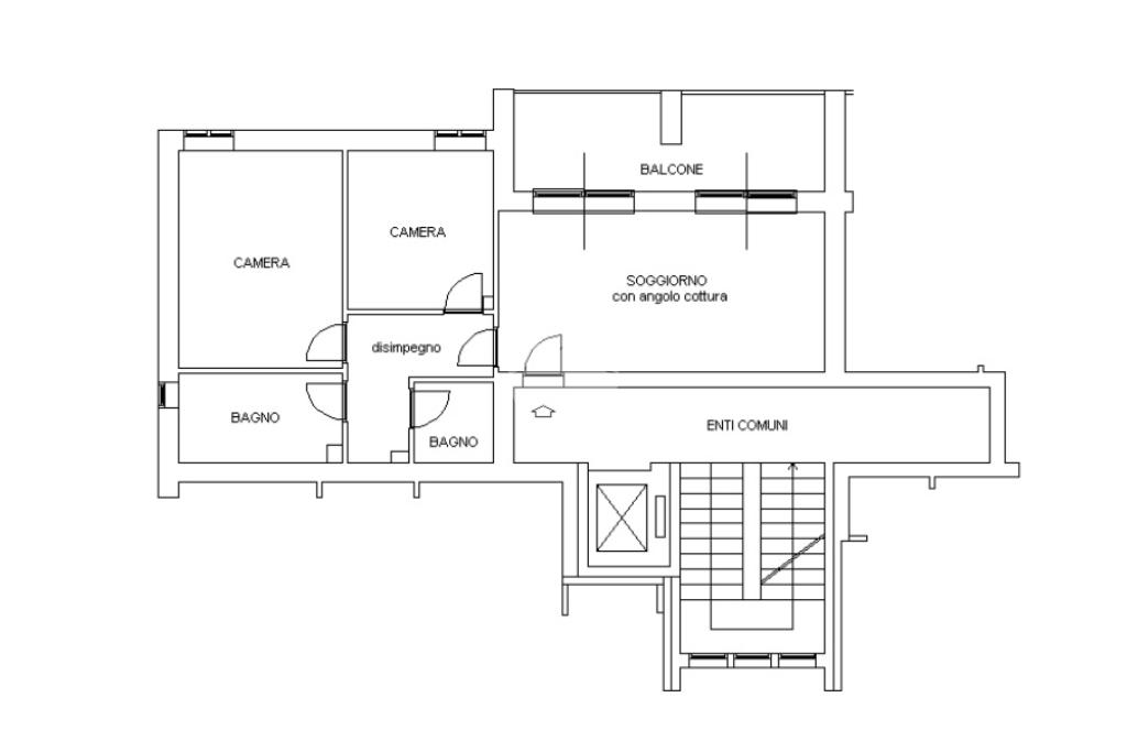
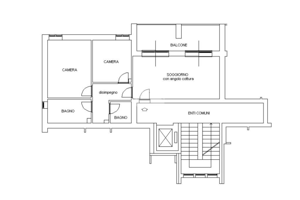
L’appartamento risulta essere così composto: ingresso diretto nella zona living con cucina a vista, doppiamente esposta e con portafinestra che permette l’accesso all’ampio terrazzo della casa, con piacevole affaccio su verde condominiale.

Tramite un disimpegno, accediamo alla zona notte della casa, che comprende:

la camera matrimoniale e la cameretta entrambe finestrate, con medesimo affaccio della zona living ed a concludere l’unità il primo bagno padronale, finestrato con vasca in muratura ed il bagno di servizio con box doccia ed aspirazione forzata.

L'appartamento si presenta RISTRUTTURATO, con una pavimentazione in grès porcellanato nel soggiorno e nei bagni, mentre nelle camere troviamo del parquet in legno massello. Inoltre, porta blindata ed infissi in doppio vetro/legno.

Riscaldamento termoautonomo. Cantina di pertinenza.

possibilità' di acquistare BOX AUTO AL PREZZO DI 25.000 €

Soluzione abitativa adatta a diverse tipologie di persone, di fatti per i vantaggi e le comodità che offre è perfetta per professionisti, per le giovani coppie o per le persone che apprezzano la tranquillità, grazie al contesto in cui si trova.

Le Informazioni non sono contrattuali. Ogni Agenzia ha il proprio titolare ed è autonoma. VALUTAZIONI IMMOBILI E CONSULENZE MUTUO GRATUITE E SENZA IMPEGNO.

Mostra tutto

Nelle vicinanze

Trasporto pubblico Trasporto pubblico
Assago Milanofiori Forum
Assago Milanofiori Forum
860 m
Assago Milanofiori Nord
Assago Milanofiori Nord
1,4 Km
Via Curiel Via Maggi (Rozzano)
Via Curiel Via Maggi (Rozzano)
1,4 Km
Via Curiel Via Lambro (Rozzano)
Via Curiel Via Lambro (Rozzano)
1,5 Km
Trasporto pubblico
280 m
Ricariche auto elettriche Ricariche auto elettriche
Enel Drive - Milanofiori Nord MC
1,0 Km
Enel Drive - Milanofiori Nord MM
1,3 Km
EnelX EVA+ Assago Nord Stazione MM1
1,3 Km
Assago Cascina Bazzana
1,6 Km
Ads Q8 Fiordaliso | EnelX Fast
1,6 Km
Scuole Scuole
Scuole
330 m
Scuola Secondaria di Primo Grado Luini Falcone
970 m
Scuola Primaria Via Milano
1,1 Km
Scuola Media Luini
2,0 Km
Centro Formazione Professionale
2,0 Km
Farmacia Farmacia
Farmacia Assago Milanofiori
690 m
Farmacia comunale
1,5 Km
Iper Farma
1,7 Km
Farmacia
1,9 Km
AMA Rozzano Spa
2,0 Km
Ospedali Ospedali
Istituto Clinico Humanitas
2,8 Km
Supermercati Supermercati
Carrefour
620 m
Il Gigante
1,2 Km
coop
1,2 Km
Iper - La Grande I
1,8 Km
Eurospin
1,8 Km
Negozi Negozi
OVS
580 m
Pull & Bear
600 m
abiti da sposa
1,2 Km
Negozi
1,2 Km
Primark
1,8 Km
Bar Bar
Bar Sforza
770 m
Forum Cafè
1,1 Km
Romeo Cafè
1,1 Km
Bar
1,2 Km
Kiss Bar
1,9 Km
Ristoranti Ristoranti
Eat Ristorante Wok
370 m
capatosta
500 m
Naturalmente S.r.l.s.
520 m
Good fellas
650 m
Kloe
690 m
Mostra tutto

Caratteristiche

Rif.:
61156174
Piano:
1 di 5 con ascensore (Piano basso)
Terrazzi:
1
Camere da letto:
2
Arredamento:
Assente
Condizionamento:
Autonomo
Mostra tutto
Prezzo Prezzo
€ 227.000
Rata mutuo Rata mutuo
€ 1.071 / mese
Spese annue Spese annue
€ 2.000
Proponi il tuo prezzoProponi il tuo prezzo

Classe Energetica

C
C
C
C
C
C
C
C
C
EP globale non rinnovabile:
45.00 kW h/m² anno
EP globale rinnovabile:
45.00 kW h/m² anno
EP invernale del fabbricato:
EP estiva del fabbricato:
Anno di costruzione:
2009
Riscaldamento:
Autonomo
Tipo impianto:
A radiatori
Tipo alimentazione:
Metano

Ti interessa visionare l'immobile?

Fissa un appuntamento  Fissa un appuntamento

Richiedi informazioni

Clicca su Leggi per aprire l'informativa
* Questi campi sono obbligatori

Calcola il tuo mutuo

Semplice e senza impegno
Anticipo

( % )
Mutuo

( % )

pochi semplici passi

inserisci i tuoi dati
Questionario completato
Grazie per aver richiesto un appuntamento senza impegno con un nostro Consulente del Credito e Assicurativo.

Hai inserito correttamente tutti i dati necessari e a breve riceverai una e-mail con un link da convalidare per inviare i tuoi dati.
Affiliato
Case Milano Sud Srl
Viale Europa, 62 20089 Rozzano (MI)

Il nostro staff


  • Riccardo Di Cesare
    Collaboratore

  • Leonardo Frescina
    Collaboratore

  • Fleris Hasaj
    Collaboratore

  • Federico Amendola
    Affiliato

  • Giorgia Muscolino
    Coordinatrice

  • Leonardo Porcella
    Responsabile
Viale Europa, 62 20089 Rozzano (MI)
Zona: Rozzano
Mostra su mappa
Orari: Dal Lunedì al Venerdì: 09.00-20.00. Sabato: 09.00-18.00
Affiliato
Case Milano Sud Srl
Viale Europa, 62 20089 Rozzano (MI)

2025 Tecnocasa Franchising S.p.A. - P. IVA 08365160152 - Via Monte Bianco 60/A 20089 Rozzano (MI). Ogni agenzia ha un proprio titolare ed è autonoma. Privacy policy | Policy utilizzo | Cookie policy