Villa singola in vendita

Rozzano, Via Giorgio Amendola - Rozzano Vecchio
€ 680.000
8 locali 8 locali
250 Mq 250 Mq
3 bagni 3 bagni

Villa singola in vendita

Rozzano, Via Giorgio Amendola - Rozzano Vecchio

Descrizione annuncio

VIA AMENDOLA: Nel cuore di Rozzano vecchio, a pochi metri dalle fermate dei vari mezzi di superficie (bus 201 e Tram 15), che in meno di 30 minuti collegano anche al centro della città di Milano, oltre che in posizione strategica per l'accesso alle varie arterie tangenziali - autostradali, proponiamo in vendita un elegante e raffinata Porzione di Bifamiliare completamente ristrutturata nei minimi dettagli con materiali di pregio.

LAVORI DI SUPERBONUS 110% EFFETTTUATI NEL 2023.

La zona circostante è caratterizzata dalla tranquillità e dalla vivibilità, con una rete di servizi a portata di mano: supermercati, farmacie, scuole, bar e ristoranti, che rendono il quartiere ideale per famiglie e professionisti. Inoltre, la posizione consente di godere di una qualità della vita elevata, con facile accesso alle principali arterie stradali.

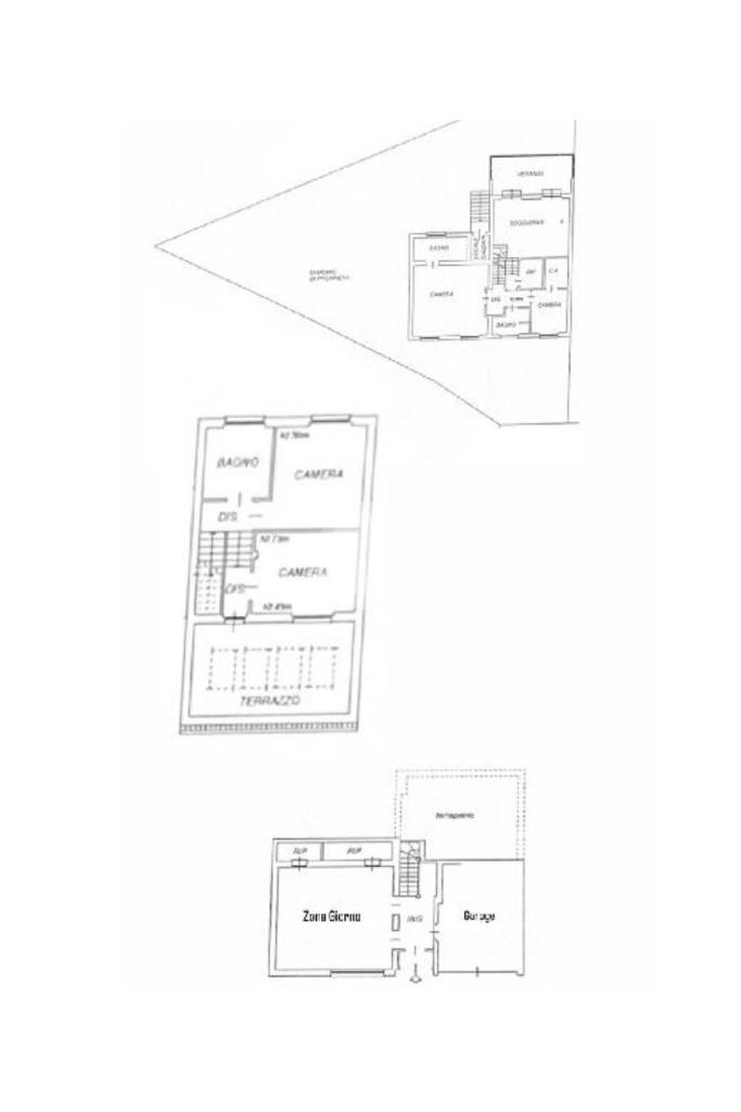
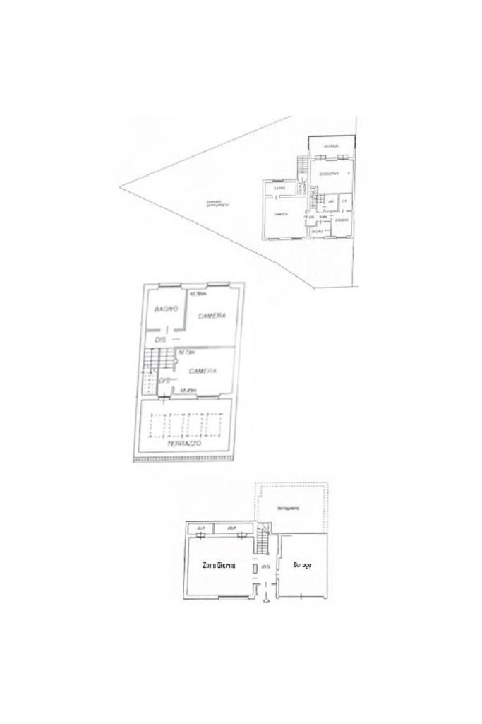
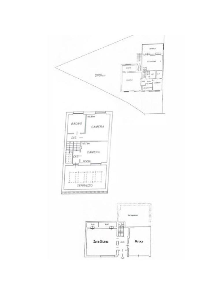
L'immobile si presenta COMPLETAMENTE RISTRUTTURATO ed è così composto:

L'ingresso conduce al piano terra dove troviamo una luminosa zona giorno con la presenza di due ripostigli. Una raffinata scala in marmo conduce al piano superiore, dove troviamo una moderna cucina in stile americano con isola centrale, caratterizzata da due ampie porte finestre che si affacciano sull’elegante veranda. Quest’ultima, grazie alle generose dimensioni, offre molteplici possibilità di arredo, rendendola uno spazio ideale da vivere in ogni stagione, inoltre dà accesso allo splendido giardino privato, che si sviluppa su tre lati della proprietà, regalando un’oasi di tranquillità e riservatezza. Proseguendo, si accede alla zona notte, composta da una spaziosa camera padronale con bagno en-suitè finestrato, dotato sia di vasca che di box doccia.

A completare il livello, troviamo un secondo bagno di servizio, elegante e ben rifinito con materiali di pregio, una funzionale zona lavanderia e una camera singola con cabina armadio. Al piano superiore si trovano altre due ampie camere da letto, un bagno finestrato con box doccia e doppio lavabo, oltre ad un comodo terrazzo, ideale per momenti di relax all’aperto.

Completa la proprietà un box doppio con colonnina elettrica, direttamente collegato all’ abitazione .

L'appartamento si presenta COMPLETAMENTE RISTRUTTURATO, con pavimentazione in parquet in legno massello in quasi tutti gli ambienti, che dona calore e morbidezza rendendo tutti gli ambienti più confortevoli, fatta eccezione dei bagni ove troviamo grès porcellanato con diverse trame.

Inoltre, aria condizionata , infissi in TRIPLO vetro Pvc, porta blindata ed impianto d’allarme volumetrico e perimetrale.

impianto soluzione si rivela ideale per professionisti, giovani coppie o famiglie alla ricerca di un ambiente tranquillo e raffinato, ma anche per chi desidera un investimento sicuro in una zona di prestigio.

Ogni agenzia ha un proprio titolare ed è autonoma. Le info non sono La Nostra Agenzia, È Possibile Su Richiesta, Grazie Ai Nostri Professionisti Della Kiron, Ricevere Una Consulenza Gratuita Ed Accedere Ad Un'ampia Gamma Di Prodotti Creditizi E Assicurativi Come: -Mutui, -Cessioni Del Quinto Dello Stipendio O Pensione, -Consolidamento Debiti, - Prodotti Assicurativi.

Mostra tutto

Nelle vicinanze

Trasporto pubblico Trasporto pubblico
Assago Milanofiori Forum
Assago Milanofiori Forum
2,4 Km
Viale Liguria - Via Guido Rossa (Rozzano)
Viale Liguria - Via Guido Rossa (Rozzano)
410 m
Rozzano (Via Guido Rossa)
Rozzano (Via Guido Rossa)
600 m
SS35 - Burlagiò (Rozzano)
SS35 - Burlagiò (Rozzano)
130 m
Trasporto pubblico
330 m
Ricariche auto elettriche Ricariche auto elettriche
BeCharge Municipio di Basiglio
2,4 Km
Centro Commerciale Milano 3 | EnelX
2,4 Km
BeCharge Centro Commerciale Milano 3
2,5 Km
Res. Sassi - Milano 3
2,6 Km
BeCharge campi sportivi Basiglio
2,6 Km
Scuole Scuole
Scuola Elementare Fratelli Cervi
290 m
Centro Formazione Professionale
530 m
Scuola Media Luini
620 m
Scuole
840 m
IIS Italo Calvino
880 m
Farmacia Farmacia
AMA Rozzano Spa
810 m
Farmacia comunale
1,2 Km
Farmacia San Giorgio
2,0 Km
Farmacia Remotti
2,5 Km
Farmacia Assago Milanofiori
2,7 Km
Ospedali Ospedali
Istituto Clinico Humanitas
1,8 Km
Supermercati Supermercati
Simply Market
770 m
Pam
820 m
Il Gigante
1,5 Km
MD
1,9 Km
EuroSpin
2,1 Km
Negozi Negozi
Pasticeria Ottocento
2,0 Km
Panificio Milano 3
2,5 Km
abiti da sposa
2,5 Km
Negozi
2,5 Km
OVS
2,6 Km
Bar Bar
Bar Sforza
2,3 Km
Forum Cafè
2,5 Km
Easy Café
2,5 Km
Bar
2,5 Km
Rivalago
2,6 Km
Ristoranti Ristoranti
Trattoria Burlagio
100 m
New Garden
910 m
Artica Osteria Moirago
1,3 Km
Eat Ristorante Wok
1,8 Km
capatosta
1,9 Km
Mostra tutto

Caratteristiche

Rif.:
61113012
Piano:
1 di 1 (Piano basso)
Box:
1
Posti auto:
1
Terrazzi:
1
Camere da letto:
5
Mostra tutto
Prezzo Prezzo
€ 680.000
Rata mutuo Rata mutuo
€ 3.210 / mese
Spese annue Spese annue
€ 1.000
Proponi il tuo prezzoProponi il tuo prezzo
Immobile valutato con T·Valuta

Classe Energetica

C
C
C
C
C
C
C
C
C
EP globale non rinnovabile:
139.73 kW h/m² anno
EP globale rinnovabile:
139.74 kW h/m² anno
EP invernale del fabbricato:
EP estiva del fabbricato:
Anno di costruzione:
2006
Riscaldamento:
Autonomo
Tipo impianto:
A radiatori
Tipo alimentazione:
Metano

Ti interessa visionare l'immobile?

Fissa un appuntamento  Fissa un appuntamento

Richiedi informazioni

Clicca su Leggi per aprire l'informativa
* Questi campi sono obbligatori

Calcola il tuo mutuo

Semplice e senza impegno
Anticipo

( % )
Mutuo

( % )

pochi semplici passi

inserisci i tuoi dati
Questionario completato
Grazie per aver richiesto un appuntamento senza impegno con un nostro Consulente del Credito e Assicurativo.

Hai inserito correttamente tutti i dati necessari e a breve riceverai una e-mail con un link da convalidare per inviare i tuoi dati.
Affiliato
Case Milano Sud Srl
Viale Europa, 62 20089 Rozzano (MI)

Il nostro staff


  • Riccardo Di Cesare
    Collaboratore

  • Leonardo Frescina
    Collaboratore

  • Fleris Hasaj
    Collaboratore

  • Federico Amendola
    Affiliato

  • Giorgia Muscolino
    Coordinatrice

  • Leonardo Porcella
    Responsabile
Viale Europa, 62 20089 Rozzano (MI)
Zona: Rozzano
Mostra su mappa
Orari: Dal Lunedì al Venerdì: 09.00-20.00. Sabato: 09.00-18.00
Affiliato
Case Milano Sud Srl
Viale Europa, 62 20089 Rozzano (MI)

2025 Tecnocasa Franchising S.p.A. - P. IVA 08365160152 - Via Monte Bianco 60/A 20089 Rozzano (MI). Ogni agenzia ha un proprio titolare ed è autonoma. Privacy policy | Policy utilizzo | Cookie policy